Más Información

Sheinbaum destaca reducción en homicidios dolosos en lo que va de su gobierno; “es un logro de todo México”, afirma

Clara Brugada llama a no estigmatizar alcaldías que tienen más casos de sarampión; pide a medios manejar información con mucho cuidado

Aplican 14 millones de vacunas contra sarampión en el último año, reporta Salud; destaca esfuerzo coordinado

Juanita Guerra, entre el salón de belleza del Senado y señalamientos por hostigamiento a periodistas; esta es su trayectoria política

Hackeo al SAT, IMSS y Morena filtra datos de más de 36 millones de mexicanos; expertos advierten fallas estructurales en ciberseguridad

“Los mineros estamos de luto”: convocan a manifestación nacional tras hallazgo de trabajadores asesinados en Sinaloa; será el próximo sábado
El pasado lunes se decretó como Monumento artístico el Centro SCOP, sin embargo, la iniciativa ciudadana En Defensa del Centro SCOP señaló que la declaratoria patrimonial tiene dos “ambigüedades”.
Se señala que en la declaratoria que se publicó en el Diario Oficial de la Federación el 16 de octubre no se hace mención “a la cabal restitución de los murales y la obra escultórica en su disposición original”.
El otro comentario es que en la declaratoria se propone un uso de suelo de tipo mixto, cuando el espacio tiene el uso de suelo de Equipamiento. “Así debe permanecer; pedimos un espacio público, abierto a la ciudadanía, con carácter eminentemente cultural, educativo y de recreación. Ésto último como reflejo del significado de la obra plástica y arquitectónica”, se indica en el pronunciamiento.
Además de estas “ambigüedades”, En Defensa del Centro SCOP” señala la importancia de respetar la volumetría en la que se exponen los murales de los edificios “ya que siguen una narrativa ligada a su espacialidad”, así como defiende el concepto de “‘supermanzana’ con la que fue concebido el conjunto”.
“Esta Iniciativa Ciudadana celebra la publicación del decreto y lo considera un gran paso en la salvaguarda del patrimonio”, declaran y esperan que sus observaciones sean consideradas por las autoridades.
Implicaciones de la declaratoria del Centro SCOP
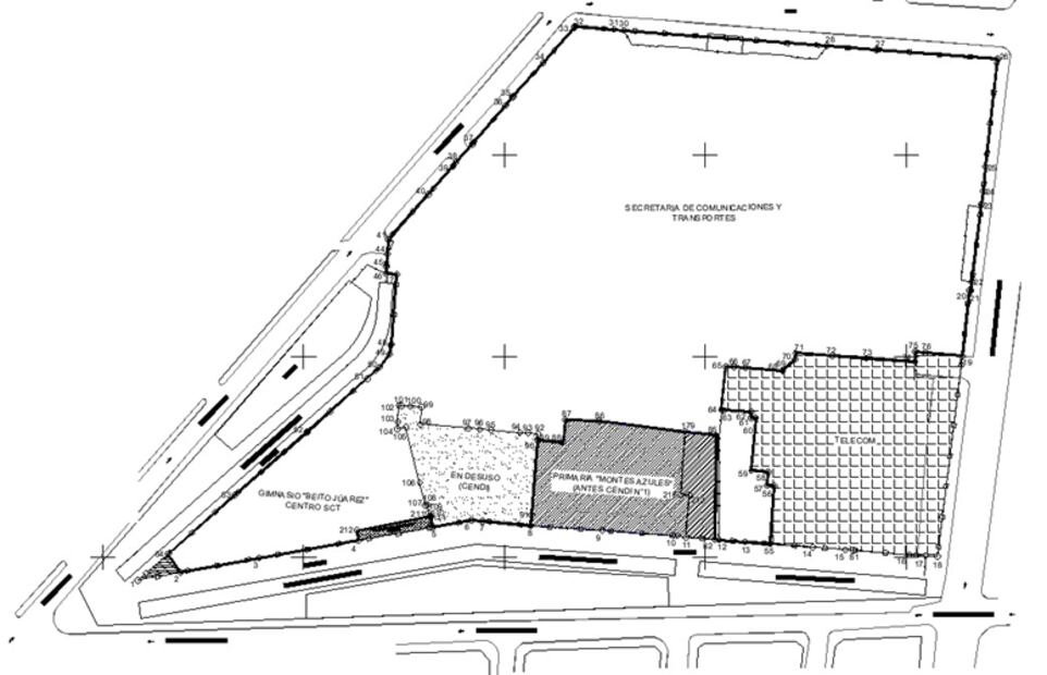
El lunes, en el Diario Oficial de la Federación se publicó el decreto por el cual se declara Monumento artístico al Centro SCOP, un conjunto arquitectónico que data de 1954 y fue diseñado por Augusto Pérez Palacios y Raúl CachoÁlvarez y que tiene 6 mil 85 m² de murales, realizados por los artistas Juan O’Gorman, José Chávez Morado, Guillermo Monroy, José Gordillo, Arturo Estrada Hernández, Jorge Best Berganzo, Luis García Robledo y Rosendo Soto. El conjunto sufrió daños en los terremotos de 1985 y 2017.
“Se declara monumento artístico el conjunto en el que se localizan el Centro Scop, antes Oficinas Centrales de la Secretaría de Comunicaciones y Transportes (Centro Nacional), ubicado en la avenida Xola, número 1561, colonia Narvarte Oriente, alcaldía Benito Juárez, código postal 03023, y la Torre Central de Telecomunicaciones y Oficina Telegráfica ubicada en la avenida Eje Central Lázaro Cárdenas, número 567, colonia Narvarte, alcaldía Benito Juárez, código postal 03020, ambos en Ciudad de México”, se lee.
El nombrar Monumento artístico al Centro SCOP tendrá implicaciones como requerir permiso del INBAL para obra de conservación, restauración, excavación, cimentación, construcción y liberación; la coordinación de la Secretaría de Cultura y la Secretaría de Infraestructura, Comunicaciones y Transporte “para implementar un proyecto de intervención que garantice la preservación, la conservación y la permanencia de la obra mural y escultórica que existe en el sitio”, así como para preservar y mejorar el arbolado y el área verde. La SICT también deberá “establecer las acciones para la regulación del uso de suelo”.
Las dependencias también deberán desarrollar un programa de divulgación y educación sobre el Centro SCOP.
De acuerdo con el decreto, en 30 días naturales, partiendo desde hoy, se deberán establecer los “mecanismos de colaboración que definan los criterios para la protección, conservación, promoción y difusión del monumento artístico, enfocados al conocimiento, al estudio, al respeto y al aprecio del patrimonio cultural”.
El pasado martes, el Colegio de Investigadores del Instituto de Investigaciones Estéticas de la UNAM publicó un pronunciamiento, donde solicita a las autoridades discutir públicamente el proyecto de conservación de los murales del Centro SCOP, así como hacer pública “la información detallada sobre los procedimientos a seguir para la conservación de los mosaicos, así como los fundamentos, argumentos y decisiones relativos a las estructuras públicas”.
Transforman al Centro SCOP
El 11 de febrero, el grupo civil En defensa del Centro SCOP presentó a los medios de comunicación el proyecto del parque cultural Centro SCOP, el mismo que se les dio a conocer un día antes por la Secretaría de Cultura, a través del Instituto Nacional de Bellas Artes (INBAL) y la Secretaría de Infraestructura Comunicaciones y Transporte (SICT).
En esa conferencia, organizada por vecinos, se anunció que en el complejo se contempla tener un auditorio, salones para talleres, gimnasio y restaurantes. De acuerdo con una propuesta inicial sobre cómo rescatar los murales, se plantea que dos edificios sean demolidos y que los murales se reacomoden alrededor de un espejo de agua.
También se informó que hay interés en este proyecto por parte de presidencia. Incluso se comentó que autoridades del INBAL y SICT reconocieron “tener prisa” para que la obra se concluya antes de que acabe el sexenio, por lo que debe quedar para junio de 2024. En julio comenzaron los trabajos preparatorios de la obra.
Actualmente ya se están realizando las obras.

Lee también: Una carta firmada por Cristóbal Colón en 1493 es subastada por 3,92 millones de dólares
Noticias según tus intereses
[Publicidad]
[Publicidad]









